A421-A



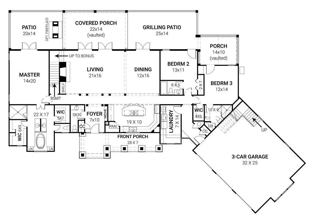
The Craftsman Tres Le Fleur Ranch House Plan is a striking Cottage intertwined with the softness of a Country Home. Upon arrival you are struck by its amazing curb appeal. There are large and swooping roofs, adorned with elegant gables & shutters. Stone, siding and cedar shakes blend beautifully together to create a unique look for this rustic Home plan. The wide open floor plan of this House Style is a home buyer's answer when looking for an affordable Home with plenty of room.
Through Craftsman pillars, you will approach a full Covered Front Porch. This Country Style Front Porch is ideal for greeting guests and for peaceful evenings. Inside, the heart of the impressive Tres Le Fleur Ranch House Plan can be found the open layout that allows one to see completely through the Home, onto the Covered Porch. Once inside, the Foyer of the Craftsman Style Ranch Home, there is a Niche to your right for a personalized Home grown flower arrangement.
This one-of-a-kind Craftsman Style Ranch Home takes on a unique twist. Straight ahead you will find a Gallery that draws your attention; introducing an extensively large Designer Kitchen.
Boasting a commanding Multi-Purpose freestanding Island
Floating ceiling cabinets
An exclusive view of the front Landscaped property
Directly across from the Kitchen, is a vast two-story Great Room which displays in grand splendor a two story Fireplace with wood beams. The Casual Dining Area opens up to draw family and guest near. This Craftsman Style Ranch Home is laid out for family entertaining. Each of the rooms above; flow out into multiple covered Porches & a Grilling Terrace.
Making our way on around the Tres Le Fleur Country Home Plan, we find an all-inclusive Laundry Room adjacent to an Entry Hall from the Garage with a large sink and folding table.
The Garage includes back steps to a Future Apartment for in-laws, teenagers, or boom-a-rang children, or it can be used for storage.
Two additional Bedrooms, which would be perfect for children and guests, can be included. Most rooms have access to all the outdoor living areas where activities may take place on the Grilling Terrace & covered Patio.
The Craftsman Ranch calls us around to the left of the home where, situated for privacy the Master Bedroom can be seen. The luxurious Master Suite has eloquent trey ceilings The En-Suite is full of grandeur such as:
A modern one-of-a-kind glass shower
An oversized lounging tub
His & hers built-in cabinets within the closets
A cabinet by her vanity for extra appliances and make-up
Private access to a Patio
A surprise feature is the hidden stairway curling around the fireplace in the Great Room. This staircase shows open railings as it wraps around the Fireplace. Homeowners are offered a second-story future space, for a potential loft, living area with a Bedroom and walk-in closet, or for use as storage.
This Craftsman Style Tres Le Fleur Home Plan is ideal for a lake, mountain or scenic backyard lot. The Country Craftsman Ranch home plan will welcome your family and guests with peaceful Cottage comfort.





PDF (Single Build)
A complete set of working drawings delivered in digital PDF format. This option comes with a license to build ONE home and includes a copyright release for printing unlimited sets of plans and making modifications.
CAD + PDF (Single Build)
A complete set of working drawings delivered in digital DWG and PDF formats. AutoCAD files are used by design professionals to make significant modifications or engineering calculations to the plan. This option comes with a license to build ONE home and includes a copyright release for printing unlimited sets of plans and making modifications.
5 or 8 Prints (Single Build)
Five or eight printed sets of working drawings shipped to you. This option comes with a license to build ONE home.
5 Prints + PDF (Single Build)
Five printed sets of working drawings shipped to you, plus a digital version in PDF format. This option comes with a license to build ONE home and includes a copyright release for printing unlimited sets of plans and making modifications.
PDF (Multi Build)
A complete set of working drawings delivered in digital PDF format. This option comes with a license to build an UNLIMITED number of homes and includes a copyright release for printing unlimited sets of plans and making modifications. This option may not be available for all house plans, or may require a specific format to be purchased. Please call 770-831-6363 for more information.
CAD + PDF (Multi Build)
A complete set of working drawings delivered in digital DWG and PDF formats. AutoCAD files are used by design professionals to make significant modifications or engineering calculations to the plan. This option comes with a license to build an UNLIMITED number of homes and includes a copyright release for printing unlimited sets of plans and making modifications. This option may not be available for all house plans, or may require a specific format to be purchased. Please call 770-831-6363 for more information.
Choose a building foundation for your home. The foundation provides stability to a home's structure from the ground up.
Slab - This concrete foundation is reinforced with steel rods and suitable for flat ground.
Crawl Space - This foundation is raised off the ground with low walls resting on footings, providing space for wiring, plumbing, and storage.
Basement - This foundation is entirely or partially below ground and offers storage or living areas.
Walkout Basement - This foundation is typically suited for rear-sloping lots and provides storage or living areas. Walkout basements have doors that provide access to the outside.




The construction drawings will include detailed, dimensioned floor plans, exterior elevations, roof plan, foundation plan, basic electrical layout, cross-section(s), foundation plan, and other general specifications. Some plans will include interior cabinet layouts.
View Sample Plan
Archival Designs brings you over 40 years of experience in the house plan design business. We offer the best value for your money by offering the highest quality home designs.
We offer a 10% military & first responder discount, as well as builder discounts for life! Archival Designs guarantees the lowest prices anywhere online. Learn more about our Best Price Guarantee.
All house plans sold by Archival Designs have been designed to comply with the International Residential Code (IRC) and to the local codes in the area where the designer resides or where the house was built.
All house plans are designed to meet or exceed the national building standards required by the International Residential Code (IRC). Due to differences in climate and geography throughout North America, every city, local municipality and county has unique building codes and regulations that must be followed to obtain a building permit. Prior to purchasing a set of house plans, we recommend that you meet with your local building officials in order to determine the building requirements for your area. It is the responsibility of the purchaser(s) and/or builder to ensure that the structure is constructed to meet the codes of their local area.
Important Note:
House plans do not come stamped or signed by an architect or engineer. Additionally, house plans typically will not include structural engineering notes/calculations. Please check with your local building officials to determine if a stamp is required. If required, the building department will only accept a stamp from a licensed professional in the state where the home will be built.
Depending on your city, county, and state building requirements, house plans may need to be reviewed by a local licensed architect or engineer for structural details and code standards before construction begins. This is particularly true in coastal areas and those facing seismic events, extreme winds, and heavy snow. If you are building in any of these areas, a licensed structural engineer will likely be needed to provide the necessary calculations and additional drawings. We authorize the use of our plans conditioned on your obligation and agreement to strictly comply with all local building codes, ordinances, regulations, and requirements, including permits and inspections at the time of and during construction. We recommend checking with your local building department for the most current requirements. The purchaser(s) and/or builder are responsible for additional expenses incurred through meeting municipality requirements or other requirements for construction.
Our foundation plans have been designed for universal conditions and may need to be adjusted to fit your specific site conditions. The foundation should be modified by a local structural engineer to comply with soil testing laboratory findings and local building requirements.
Our house plans will include schematic electrical drawings; however, circuiting or wire sizing will not be included. Your electrical subcontractor will typically provide these drawings.
HVAC and plumbing drawings are not included. Your mechanical and plumbing subcontractors will determine the best layout for your site. Local HVAC codes, climatic requirements and commonly used systems vary throughout the country. The direction of how water flow will enter the home vary from case to case. For this reason, it is impossible to provide universal plans.

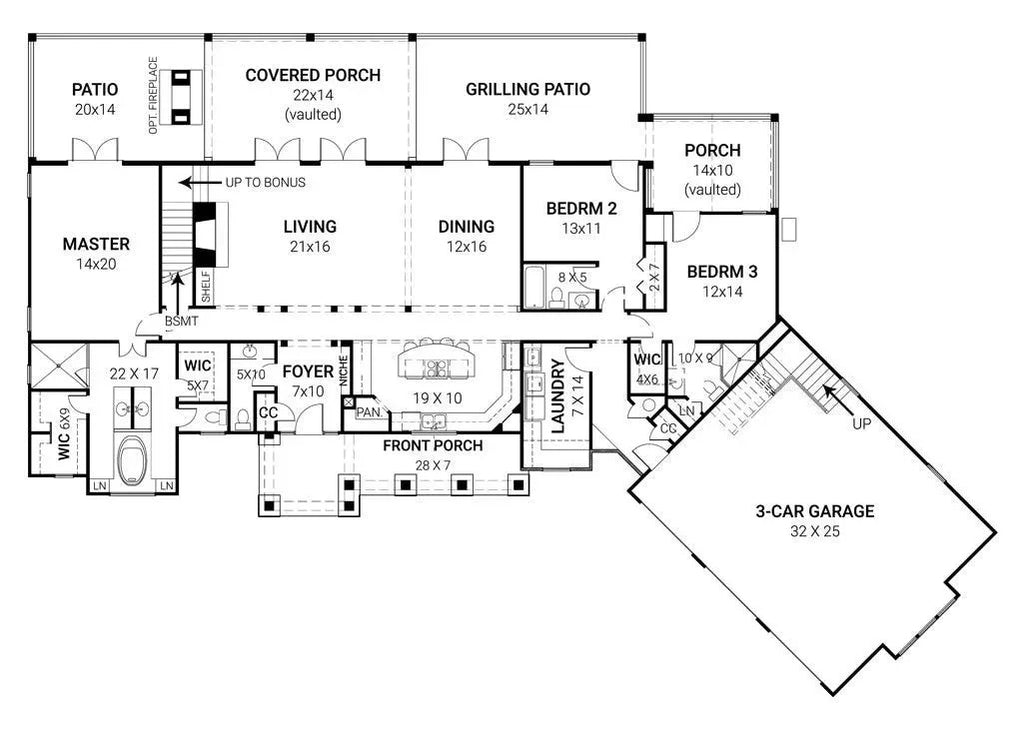
The Craftsman Tres Le Fleur Ranch House Plan is a striking Cottage intertwined with the softness of a Country Home. Upon arrival you are struck by its amazing curb appeal. There are large and swooping roofs, adorned with elegant gables & shutters. Stone, siding and cedar shakes blend beautifully together to create a unique look for this rustic Home plan. The wide open floor plan of this House Style is a home buyer's answer when looking for an affordable Home with plenty of room.
Through Craftsman pillars, you will approach a full Covered Front Porch. This Country Style Front Porch is ideal for greeting guests and for peaceful evenings. Inside, the heart of the impressive Tres Le Fleur Ranch House Plan can be found the open layout that allows one to see completely through the Home, onto the Covered Porch. Once inside, the Foyer of the Craftsman Style Ranch Home, there is a Niche to your right for a personalized Home grown flower arrangement.
This one-of-a-kind Craftsman Style Ranch Home takes on a unique twist. Straight ahead you will find a Gallery that draws your attention; introducing an extensively large Designer Kitchen.
Boasting a commanding Multi-Purpose freestanding Island
Floating ceiling cabinets
An exclusive view of the front Landscaped property
Directly across from the Kitchen, is a vast two-story Great Room which displays in grand splendor a two story Fireplace with wood beams. The Casual Dining Area opens up to draw family and guest near. This Craftsman Style Ranch Home is laid out for family entertaining. Each of the rooms above; flow out into multiple covered Porches & a Grilling Terrace.
Making our way on around the Tres Le Fleur Country Home Plan, we find an all-inclusive Laundry Room adjacent to an Entry Hall from the Garage with a large sink and folding table.
The Garage includes back steps to a Future Apartment for in-laws, teenagers, or boom-a-rang children, or it can be used for storage.
Two additional Bedrooms, which would be perfect for children and guests, can be included. Most rooms have access to all the outdoor living areas where activities may take place on the Grilling Terrace & covered Patio.
The Craftsman Ranch calls us around to the left of the home where, situated for privacy the Master Bedroom can be seen. The luxurious Master Suite has eloquent trey ceilings The En-Suite is full of grandeur such as:
A modern one-of-a-kind glass shower
An oversized lounging tub
His & hers built-in cabinets within the closets
A cabinet by her vanity for extra appliances and make-up
Private access to a Patio
A surprise feature is the hidden stairway curling around the fireplace in the Great Room. This staircase shows open railings as it wraps around the Fireplace. Homeowners are offered a second-story future space, for a potential loft, living area with a Bedroom and walk-in closet, or for use as storage.
This Craftsman Style Tres Le Fleur Home Plan is ideal for a lake, mountain or scenic backyard lot. The Country Craftsman Ranch home plan will welcome your family and guests with peaceful Cottage comfort.


